Pollecker Finoflex GmbH Daniel-Eckhardt-Straße 42 45356 Essen waschtische@pollcker.de

Waschtische im Trockenbau nach Maß

Bei Trockenbauwänden sind für den Waschtisch nach Maß Verstärkungen in der Unterkonstruktion einzubauen

Senden Sie uns eine Anfrage

Waschtische werden mit Winkeln und Konsolen mittels Dübeln an der Wand befestigt

Bei vorWand-Montage oder Vorwandinstallation (hier Beispiel Elemente) einfach die Gewindestangen entfernen.
Finoflex®  Waschtischanlagen und Waschtische nach Maß

Beplankung der Wand

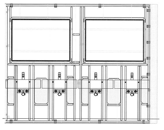
Gestell zur Montage von Waschtischen im Trockenbau

Sollte mit Gipskartonplatten doppelt ausgeführt werden. D.h. 2 x 12mm Rigips.

Haben Sie weitere Fragen? 49 (0)201 834530

Unterkonstruktion Trockenbau für Waschtischmontage

Unterkonstruktion Trockenbau für Montage von Waschtischen

GEBERIT GIS System mit freundlicher Genehmigung.

Geberit Waschtisch Element

Geberit Duofix Waschtisch Elment

Geberit Waschtisch Element Duofix für vorWandinstallation

Trockenbau für Waschtisch Montage

Trockenbau Montage Konstruktion für Montage von Waschtischen

GEBERIT GIS System mit freundlicher Genehmigung.

Unterkonstruktion Waschtisch Trockenbau

Profile zur Montage von Waschtischen im Trockenbau

Schwerer Waschtisch an Trockenbauwand

Profile in der vorWand zur Montage von Waschtischen im Trockenbau

Waschtischhalterung für Trockenbau

Trockenbau Konstruktion Waschtisch

Waschtisch vorWandelement Trockenbau

Waschtisch vorWand Elemet Trockenbau

GEBERIT GIS System mit freundlicher Genehmigung.

Wachbecken Trockenbau

Vorgefertigte Trageelemente bzw. Montagegestelle (z.B. Geberit Duofix) werden fest mit Boden und Wand verschraubt.

Geberit Waschtisch Element Geberit GIS

Waschbecken Befestigung Trockenbau

mit Gewindestangen zur Aufnahme von Waschbecken, WC oder Urinal

Geberit GIS Set für Waschbecken mit Standarmatur

GEBERIT GIS System mit freundlicher Genehmigung.

Profile Trockenbau

Beplanung Trockenbau Wand zur Montage von Waschtischen

Trockenbau Verstärkung

Trockenbau Verstärkung für Waschtisch zur Konsolen Montage

Wollen Sie Konsollasten an Metallständerwänden bzw. Trockenbauwänden befestigen, sollten Sie den Wandhohlraum mit Holzplatten verstärken.

GEBERIT GIS System mit freundlicher Genehmigung.

Material zur Verstärkung Typische Anwendung Traglast (pro Befestigungspunkt)
Metallprofile (CW-/UW-Profile) Grundgerüst für Trockenbauwände Bis zu 40 kg
Holzlatten (z. B. KVH) Verstärkung hinter Gipskartonplatten Bis zu 50 kg
OSB-Platten (12-18 mm) Zusätzliche Beplankung hinter Gipskarton Bis zu 70 kg
Multiplexplatten Hochwertige Holzplatten für starke Belastungen Bis zu 80 kg
Spezielle Konsoltraversen Verstärkung für schwere Lasten (z. B. Hängeschränke) Bis zu 150 kg pro Traverse
Doppelbeplankung (Gipskarton) Zwei Lagen Gipskartonplatten zur Erhöhung der Stabilität Bis zu 30 kg
Metallanker/Dübel Spezielle Dübel für Hohlräume oder Vollmaterialien Je nach Typ bis zu 50-100 kg

Verkleidung Sockelbereich

Trockenbau Verkleidung Sockelbereiche zur Montage von Waschtischen

Aufputzrohre beplankt

Konsolen für Waschtischmontage im Trockenbau

Konsolen für Waschtisch Montage im Trockenbau Waschtisch Montage im Trockenbau

Aufmaß, Montage und Anpassung durch eigene Monteure

Waschbecken im Badezimmer

Sanieren Sie das Badezimmer durch Erneuerung bzw. Austausch.

Wir messen die jeweilige Raumsituation individuell aus.
News Waschtischanlagen nach Maß News Farben Waschtische

Produktprogramm
Waschtisch im Trockenbau